Ferguson Dechert Real Estate - Avalon and Stone Harbor Call Menu
 
BACK TO SEARCH RESULTS
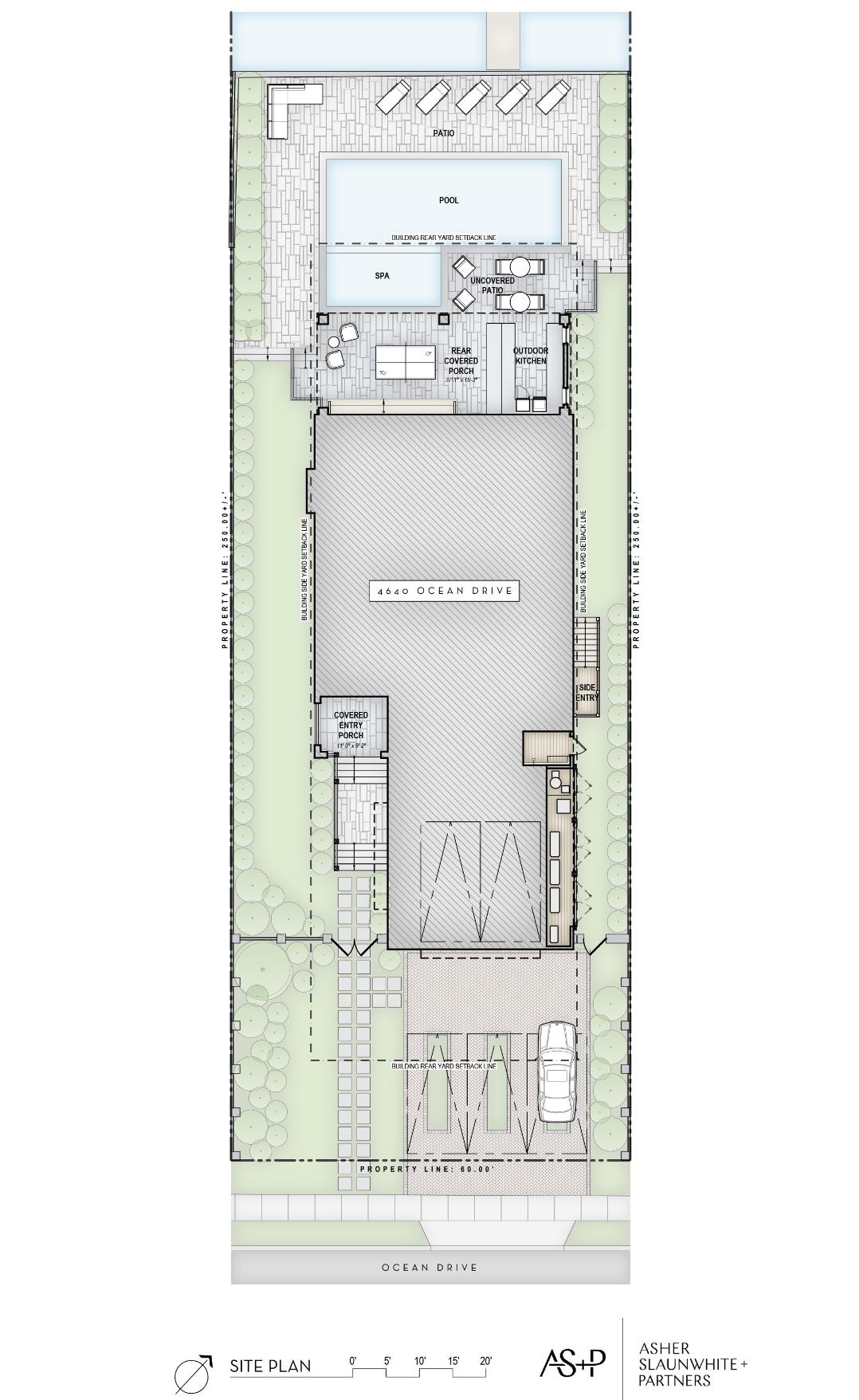
4640 Ocean Drive, Avalon, NJ - UNDER CONTRACT
https://zimg
VIEW ALL PICTURES
For Sale: $12,500,000
Bedrooms: 7     Bathrooms: 7
Half Baths: 1
Type: Single Family
    LOT: 60' x 250'
Taxes 999999999
Area: Avalon
REQUEST INFORMATION
PROPERTY DESCRIPTION
This stunning new construction designed by Asher Slaunwhite, constructed by Winfield Developers, and professionally curated by Hank Page Designs will sit on an oversized bayfront lot in the Avalon Fingers, offering every imaginable amenity. With over 160 feet of high ground approximately 35 feet (or 28%) deeper than a standard Fingers lot the property allows for interior and exterior spaces of truly unmatched scale. Every square inch of this home will reflect the meticulous craftsmanship Winfield Developers is known for, with the extra land depth felt in every space. The first level includes a dramatic, three-story foyer, a two car, 32 deep garage, a laundry room and a mudroom, two bedrooms (or a gym and one bedroom), and a family room with a wine cellar. The family room spills out to 25 deep, elevated masonry deck that spans the width of the home and includes a covered gaming area, a built-in bar with peninsula seating, an elevated spa, and a seating area - the latter two of which are uncovered. This area steps down to the grade level, which is deep enough to have multiple seating areas around an extra-large pool. Beyond the bulkhead is a brand-new Ipe docking system with two, large, deepwater boat slips and space for jet skis. Back inside and upstairs, the second floor boasts one of the island s grandest great rooms, with a 30-foot wall of Weiland sliders showcasing panoramic bay views from the living room and kitchen. The bayside, second floor deck is completely covered and includes a built-in grill, motorized storm shutters and phantom screens, and multiple entertaining spaces. The interior dining room is adjacent to massive wet bar outfit with extra beverage refrigeration. The rear of the second floor includes three more en-suite bedrooms along with a powder room. The third story offers two more en-suite bedrooms, including the bayside primary suite. The scale of the primary bedroom will be mesmerizing. The bed is centered on a gas fireplace flanked by built-in shelving. The primary bath is larger than many primary bedrooms, as is the walk-in closet. All 6,700 interior square feet along with the exterior decks will be exquisitely furnished by Hank Page Designs. Just one block from the 48th Street beach path, this location combines the serenity of bayfront living with easy beach access. Opportunities to get involved this early in a project of this caliber are exceedingly rare, allowing a future owner to influence every finish and selection. Don t miss your opportunity.
PROPERTY FEATURES
  • Patio 
  • Deck 
  • Enclosed/Covered Patio 
  • Screened Porch 
  • Grill 
  • Fenced Yard 
  • Dock 
  • Bulkhead 
  • Cable TV 
  • Sidewalks 
  • Outside Shower 
  • In Ground Pool 
  • Whirpool/Spa 
  • Boat Slips 
  • Sprinkler System 
  • Living Room 
  • Dining Room 
  • Kitchen 
  • Den/TV Room 
  • Recreation/Family 
  • Eat-In-Kitchen 
  • Dining Area 
  • Pantry 
  • Laundry/Utility Room 
  • Great Room 
  • Range 
  • Self-Clean Oven 
  • Microwave Oven 
  • Refrigerator 
  • Washer 
  • Dryer 
  • Dishwasher 
  • Disposal 
  • Smoke/Fire Detector 
  • Wine Cooler 
  • Heating:Gas Natural 
  • Heating:Forced Air 
  • Heating:Multi-Zoned 
  • Bar  
  • Cathedral Ceilings  
  • Elevator  
  • Fireplace- Gas  
  • Wood Flooring  
  • Security System  
  • Tile Flooring  
  • Kitchen Island  
  • Beverage Refrigerator  
  • Garage 
  • Attached 
  • 4 car parking 
  • Heater:Gas- Natural 
  • Heater:On Demand 
  • Bar 
  • Cathedral Ceilings 
  • Elevator 
  • Fireplace- Gas 
  • Wood Flooring 
  • Security System 
  • Tile Flooring 
  • Kitchen Island 
  • Beverage Refrigerator 
  • Cooling:Central Air Condition 
  • Cooling:Ceiling Fan 
  • Cooling:Multi Zoned 
PROPERTY MAP VIEW
https://zimg
https://zimg
https://zimg
https://zimg
https://zimg
https://zimg
https://zimg
https://zimg
https://zimg
https://zimg
https://zimg
https://zimg
https://zimg
https://zimg

Request Property Information - 4640 Ocean Drive, Avalon NJ

  For Sale: $12,500,000   |   MLS Number: 251944  
Lot: 10000-20000 SqFt | DOM: 29 Days  
Provided by: Ferguson Dechert Real Estate - www.fdrealestate.com/

(Information Above Will Appear at the Top of the Email that is Sent to Ferguson Dechert Real Estate)

SUBMIT
Let Ferguson Dechert Real Estate be your buyer agent for this listing. Listing is provided by FERGUSON-DECHERT, INC. The data relating to real estate for sale on this web page appears in part through the Cape May County MLS program, a voluntary cooperative exchange of property listing data between licensed real estate brokerage firms in which we participate, and is provided by Cape May County MLS through a licensing agreement. Disclaimer: All information deemed reliable but not guaranteed and should be independently verified. All properties are are subject to change, withdrawal, or prior sale.
FD Real Estate
2789 Dune Drive, Avalon New Jersey Call The Office